0
Skip to Content
90 Auburndale Ave. Newton
Home
Details
Gallery
Floor Plans
Contact
Open Menu
Close Menu
90 Auburndale Ave. Newton
Home
Details
Gallery
Floor Plans
Contact
Open Menu
Close Menu
Home
Details
Gallery
Floor Plans
Contact
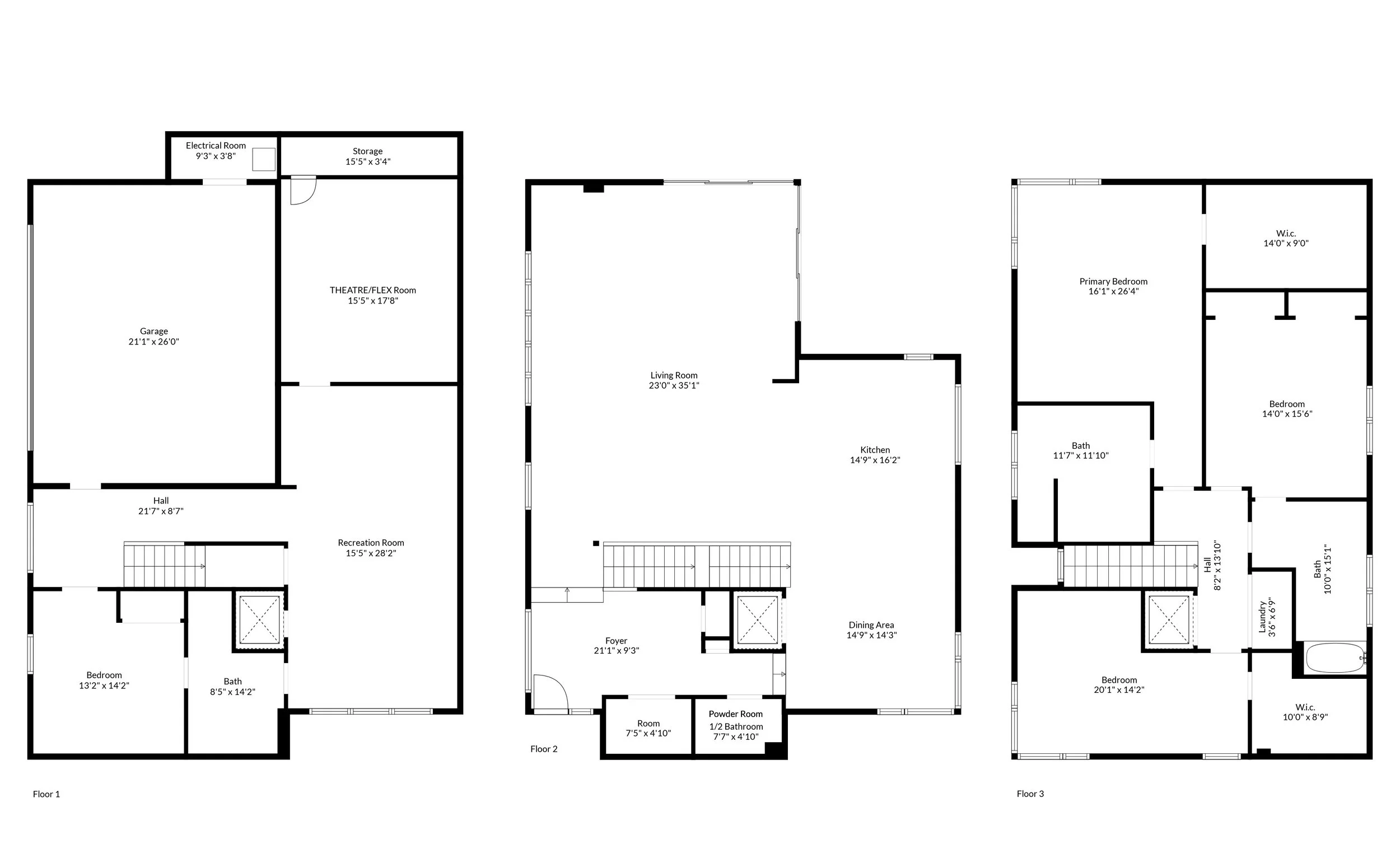
Floor plan